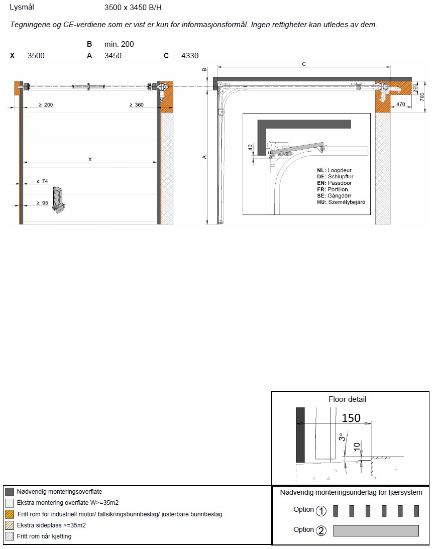
Industriport BxH 350x345cm med skinner for min. 20 cm fri overhøyde. RAL9002, 1 rad vinduer.

Edlandsporten industriport BxH 350x345cm med beslag for min 20cm fri overhøyde. Utvendig og innvendig lakkert RAL9002 og en rad med vinduer. Leveres med 3-fas motor og innvendig styreskap. Porten ligger på lager og er klar for henting i løpet av noen dager.

Kontakt oss gjerne om du ønsker pris på denne porten inkl. montering eller om du ønsker fraktpris til egen adresse.

Ønsker du å bestille denne, kan du gjøre dette ved å legge den i handlekurven og plassere din ordre. Vi kontakter deg for å avtale tidspunkt for henting.

kr 40 185,00 inkl. mva

På lager

Produktbeskrivelse

  • Edlandsporten industriport med beslag for min 20cm fri overhøyde.
  • Utvendig og innvendig lakkert RAL9002.
  • 1 rad vinduer.
  • 3-fas akselmontert motor med innvendig styreskap.
  • Fotoceller.
  • Seav mottager og håndsender.
  • DW sikkerhet i bunnlist.